Share with a friend

Please check you have entered all details correctly:

Options
Sale Agreed

3 Carson Street Larne, BT40 1SF

£77,500

Key Information

Address 3 Carson Street Larne, BT40 1SF
Price Last listed at Offers over £77,500
Style Terrace House
Bedrooms 2
Receptions 1
Bathrooms 1
Heating Gas
EPC Rating C75/C75
Status Sale Agreed
   

Additional Information

A recently modernised Town centre property priced to sell - early viewing highly recommended

Well presented modernised Mid Terrace
New kitchen
Good size Lounge
Two bedrooms
Modern bathroom suite
Gas heating
Great house in a fantastic town location
Minutes walk to Main street
Easy access to bus / trains etc
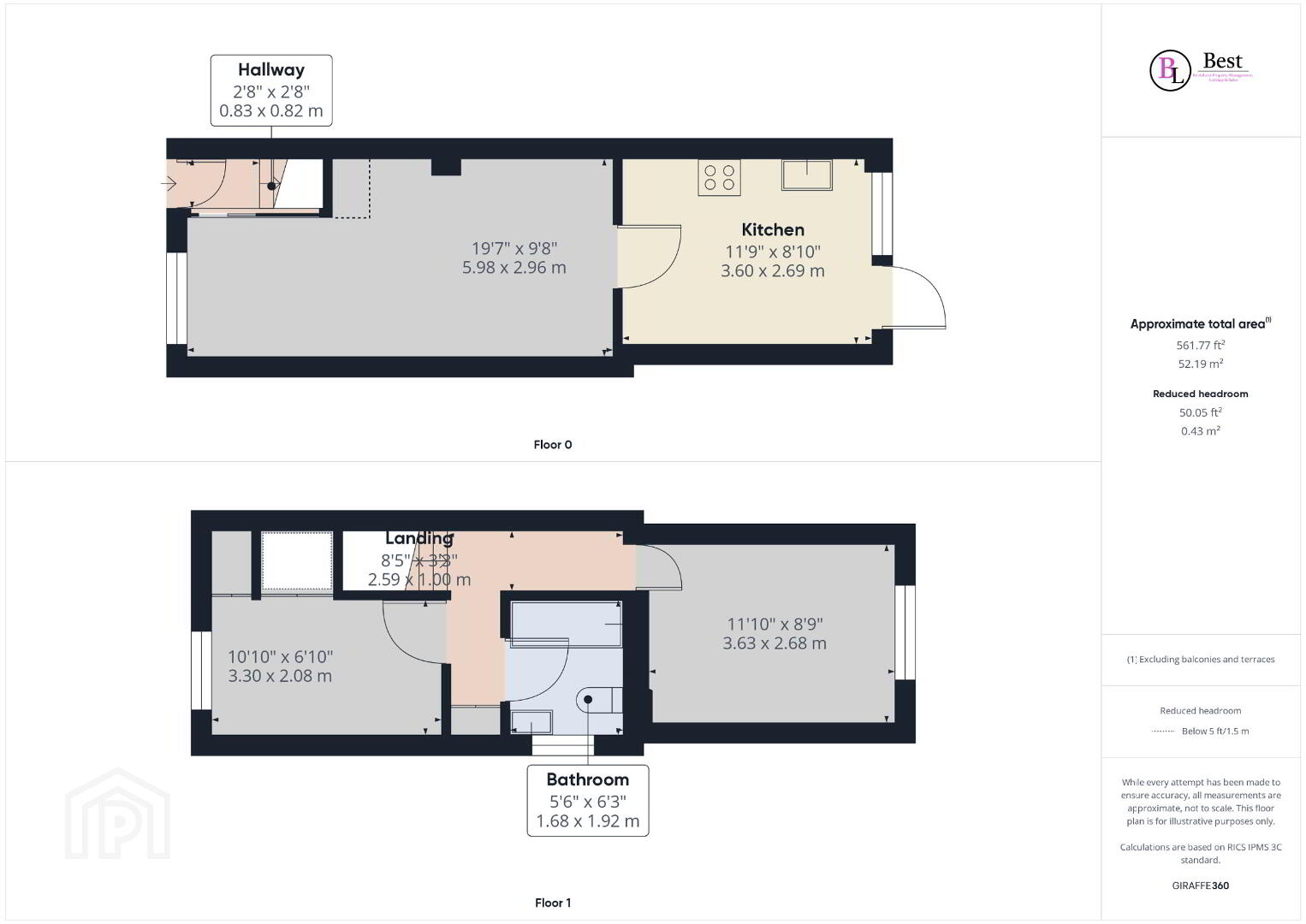
Entrance hall
Grey laminate wooden floor
Living room 6.0m x 2.97m
Great sized room. Grey laminate wood flooring.
Kitchen 3.62m x 2.66m
Newly installed kitchen - excellent range of grey gloss high and low level units. Space for fridge freezer and space for a dishwasher. Four ring hob with electric oven and extractor over. White PVC door leading to rear yard
Landing
Access to cupboard with gas boiler.
Bedroom 1 3.6m x 2.67m
Bedroom 2 3.34m x 2.09m
Access to attic, closet and eye level storage cupboard.
Bathroom 1.69m x 1.91m
Modern suite comprising low flush WC, pedestal hand wash basin, and bath with a glass shower screen.
Outside
Enclosed rear yard PLEASE NOTE: We have not tested any appliances or systems at this property. Every effort has been taken to ensure the accuracy of the details provided and the measurements and information given are deemed to be accurate however all purchasers should carry out necessary checks as appropriate and instruct their own surveying/ legal representative prior to completion.